Listing Tools

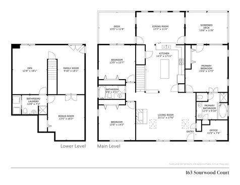
Step into the Highlands-Cashiers Plateau lifestyle with this inviting three-bedroom, three-bathroom mountain home in Holly Forest, set on a half-acre of serene, wooded landscape. The open kitchen - complete with a breakfast-bar island and walk-in pantry - flows seamlessly into a separate dining area, creating a bright, welcoming space for cooking, gathering, and everyday living. Two rear decks, one screened and one open, extend your living space outdoors, accompanied by the gentle murmur of a tiny stream on the property. A gas log fireplace anchors the living room. Downstairs, an expansive lower level offers exceptional flexibility, featuring a bonus room, a full bathroom, a laundry area, a den, additional living space, and direct garage access. From here, step out to the lower patio and natural yard with a rustic stone firepit, perfectly suited for relaxed indoor-outdoor entertaining. An inviting front sitting porch offers yet another place to unwind and enjoy the fresh mountain air. Storage is abundant throughout, with closets galore, an expansive two-car garage, and a separate garage workshop. The home grants access to Sapphire Valley Master Association amenities, including Redbird's nine-hole executive golf course, tennis, indoor and outdoor swimming pools, hot tub, sauna, weight room, putt-putt golf, ski hill, hiking trails, organized excursions, and year-round social and recreational activities. Beyond your doorstep, the Plateau's signature landscape unfolds with sparkling creeks, cascading waterfalls, scenic wooded roads, and miles of trails that invite exploration in every season. Just minutes away, Cashiers offers the charm of a walkable mountain village centered around The Village Green, where community concerts, seasonal festivals, and open-air markets bring neighbors together. Boutique shopping, acclaimed restaurants, art galleries, and a vibrant cultural scene create a rare blend of rustic beauty and refined mountain living. Nearby Highlands complements the experience with award-winning dining and an elevated small-town sophistication that continues to attract discerning second-home and full-time residents alike. Cool summer days, crisp mountain evenings, and effortless indoor-outdoor living define life here. Whether it's morning coffee on the porch, an afternoon on the trails or golf course, or an evening around the firepit, this home delivers comfort, flexibility, and the very best of Highlands-Cashiers Plateau living.

Property Details of 163 Sourwood Court

Property Details

Interior Features

Community

Map Location

Driving Directions

Listed by Daniel Allen of Silver Creek Real Estate Group,Inc.

 "Based on information submitted to HCBOR as of March 14, 2026 6:43 PM EDT. All data is deemed reliable but is not guaranteed accurate by the MLS. All information should be independently reviewed and verified for accuracy. IDX information is provided exclusively for consumers’ personal, noncommercial use and may not be used for any purpose other than to identify prospective properties consumers may be interested in purchasing."

Hi there! How can we help you?

Contact us using the form below or give us a call.

Send Us A Message:

I agree to receive marketing and customer service calls and text messages from Bambi Famous Kaine. To opt out, you can reply 'stop' at any time or click the unsubscribe link in the emails. Consent is not a condition of purchase. Msg/data rates may apply. Msg frequency varies. Privacy Policy.

Do not fill in this field:

This site is protected by reCAPTCHA and the Google Privacy Policy and Terms of Service apply.

Hi there! How can we help you?

Contact us using the form below or give us a call.

Send Us A Message:

Do not fill in this field:

This site is protected by reCAPTCHA and the Google Privacy Policy and Terms of Service apply.

Hi there! How can we help you?

Contact us using the form below or give us a call.

Send Us A Message:

Do not fill in this field:

This site is protected by reCAPTCHA and the Google Privacy Policy and Terms of Service apply.

Do not fill in this field:

This site is protected by reCAPTCHA and the Google Privacy Policy and Terms of Service apply.

Do not fill in this field:

This site is protected by reCAPTCHA and the Google Privacy Policy and Terms of Service apply.

Do not fill in this field:

This site is protected by reCAPTCHA and the Google Privacy Policy and Terms of Service apply.

$

Do not fill in this field:

This site is protected by reCAPTCHA and the Google Privacy Policy and Terms of Service apply.